brunch

양수리 일층집 (1)

2018년, 숲 속의 집에 살면 만나게 되는 것들

by 최지원
이층 집처럼 보이지만 일층집입니다.


2018년에 양평에서 양평으로 한번 더 이사했다. 같은 양평군이긴 한데 서울과 조금 더 가까운 양수리였다. 양평 이층 집에서 2년 동안 지내면서 조금 더 자연으로 다가갈 자신이 생긴 뒤였다. 양수리 일층집은 그 자신감에 부합하는 아주 충분히 자연과 교류(?)하는 집이었다. 그림처럼 집의 뒤통수에는 짙은 초록이 쓰나미 치듯이 울창한 숲을 넘치도록 만들어 내고 있었다.

집의 실내와 실외의 생태계가 연결되어 있는 느낌을 종종 느끼곤 했다. 새소리와 곤충소리가 소나기처럼 쏟아져 내렸다. 처음엔 집 밖에서 나는 소리라고 생각했는데 집안에서 나는 소리일 때도 많은 것을 차츰 알게 되었다.

건축 설계를 하면서 공간을 설명할 때 '연결'과 '조화'라는 단어를 꽤 자주 사용한다. 자연과 도시와 인간과 기존건축물들과의 '연결', '조화'는 매일 강조해도 모자란 느낌이라 그럴 것이다.

양수리 일층집이야 말로 자연과 '연결'되고 '조화'를 이루는 집의 얼굴을 하고 있었다. 그래 내가 건축가였지. 건축가라면 월든의 오두막은 힘들더라도 이런 집에 건축가라면 살아봐야 되는 거 아니겠습니까? 라며 대차게 계약을 추진했다.


양평으로 처음 내려와 선택했던 양평 이 층집(이전 편을 읽어보시라)은 견고하고 생활감 없는 콘크리트 박스, 밀봉이 가능한 플라스틱 락앤락과 같았다면 양수리 일층집은 틈이 벌어져 안에 들어있는 내용물이 보이는 나무 사과 상자 같은 느낌이었다.

곤충들의 먹이 사슬 사이에 내가 어느 정도 생존 능력이 있는지 모르고 일단 합류했다. 인류의 시각으로 보자면 집주인에게 전세계약을 하고 세 들어 산 것이고 곤충들 시점에서는 연이은 인간의 무단침입, 우리가 얼마나 강한지 모르고 사람 또 들어오네? 어쩌면 군침 도는 장난감처럼 보였을 수도 있다.



실측도면을 계획도면처럼 깔끔하게 그려둔 남편덕에 기억이 더 생생하다.

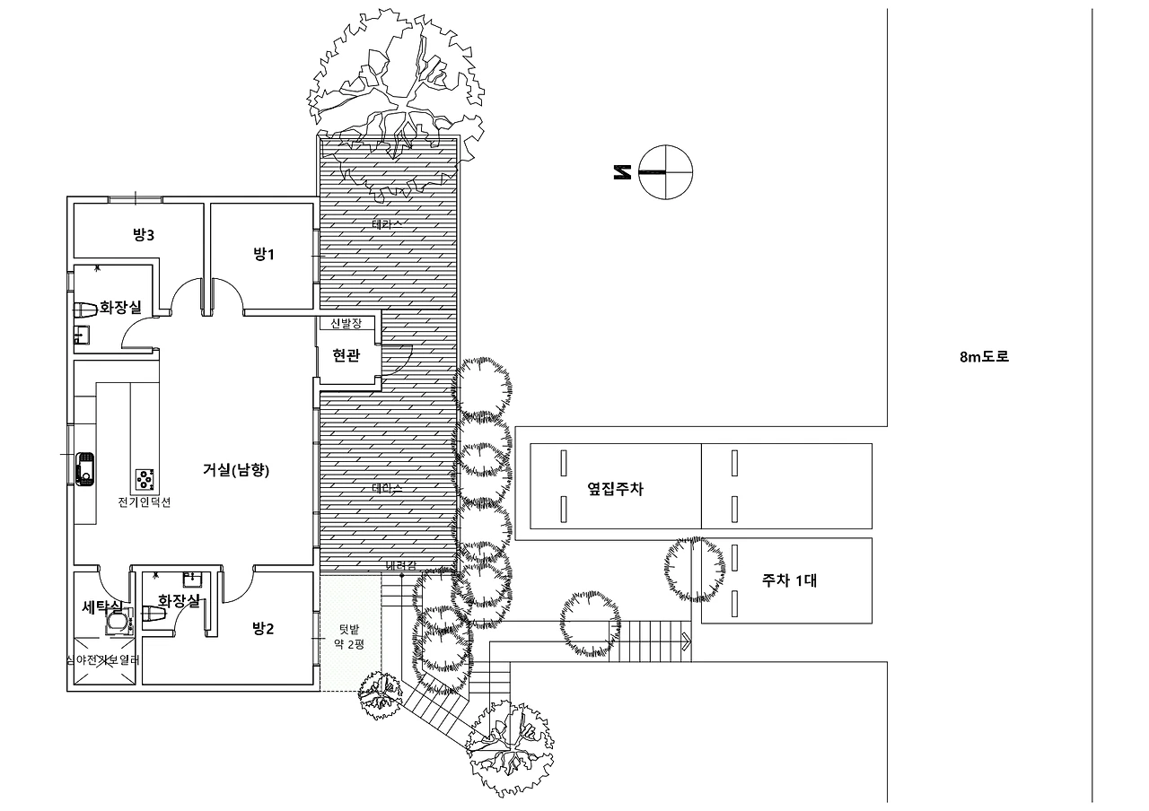
양수리 일층집은 방세개에 화장실 두 개, 거실과 주방이 통합되어 있고 남측을 향해 가로로 긴 형태였다. 밖에서 보이는 박공지붕의 방향이 실제로 실내지붕형태에 반영되어있지 않아서 천정을 바라볼 때마다 갸웃했다. 천정에 뭔가 숨겨져 있을 것 같은 대저택의 비밀 같은 스릴러가 생각나 그 생각을 떨치려고 가끔 머리를 좌우로 흔들었다.

1층이지만 차도보다 훨씬 높은 위치였고 하루종일 조용히 틀어박혀 있고 싶은 거실이 특히 마음에 들었다. 방 1은 침실이었고, 방 2는 남편의 작업실이었고, 방 3은 드레스룸이라 정작 내방은 없었는데 거실 식탁과 소파에서 책을 읽거나 테라스에 나가서 시간을 보내곤 해서 방이 없는 것을 자각하지 못했다. 요즘처럼 매일 집에서도 책상 앞에만 있는 시기를 생각하면 양수리 일층집에 살 때는 제대로 된 책상생활을 한 기억이 없다. 아무래도 거실공간에서 남향의 햇빛을 쪼이는 것으로 집생활을 만족했나 보다.


테라스와 계단

깐깐함을 작동시키지 않고 이 집을 계약했던 이유는 집 앞의 테라스다. 거실에서 항상 테라스가 보였고 거실의 대형창을 통해 내외부 공간을 넘나들기 수월했다. 보면서 접근하지 못하는 공간과 접근이 용이한 공간의 질은 매우 다르다. 남향의 빛으로 바짝 마른 언덕 위에 바짝 말라있는 데크, 오일스테인이 다 벗겨져 있는 모습이 매력적인 데크를 거실과 수시로 오갈 수 있었다. 집 앞으로는 경사가 심해서 집에 오면 4~5미터 정도 계단을 올랐다. 경사면에는 무덤이 두 개 있었다. 사람들이 무덤이 있는데 안 무섭냐고 할 때마다 무덤이 있어서 누군가 당장 신축을 한다고 공사를 시작할 일은 없을듯해서 오히려 좋다고 했고 실제로 그렇다. 아침마다 데크에서 시작해서 계단으로 내려가는 영역의 빗자루 질을 했다. 주변 나무들에서 떨어진 낙엽을 쓸곤 했는데 마당의 낙엽을 쓸 때마다 주어진 인생을 꼼꼼하게 사는 느낌이 들었다. 마당을 빗자루질하는 일은 헬스장을 대체하는 활동이라고 생각해서 시간이 아깝지 않았다. 다만 계단 주변에 꽃나무들을 다듬는 일에 몰입해서 주말의 반나절이 순간 삭제되고는 해서 이게 무슨 일인가 싶을 때가 가끔은 있었지만 매일아침 '마당을 빗자루질하는 삶'은 '저녁이 있는 삶'처럼 생계를 위해 하는 일을 넘어선 여가행위 같은 느낌이라 빗질은 빙글빙글 웃으면서 치르는 노동이었다.



처마밑에 새는 둥지를 틀고 난간두겁 밑에 말벌은 벌집을 짓는다.

난간손잡이의 디테일이 과도하면 그 밑에 벌들은 꽤나 안정적으로 벌집을 만든다. 벌집을 갖고 싶은 의도라면 난간두겁을 넓게 디테일을 디자인하면 되지만 의도가 아니라면 난간 손잡이에 재료낭비는 최소화하는 것이 좋다.

갑자기 건축각론을 이야기하고 싶었던 건 아니고 양수리집 데크의 난간두겁이 매우 넓은 편이었는데 어느 날 허세 가득한 자세로 난간에 기대어 양팔을 벌리고 수순에 따라 양손으로 난간대를 잡는 포즈를 취하다가 난간손잡이도 잡고 벌집도 함께 잡은 경험 때문에 그렇다.

벌집에 있던 말벌들은 파괴되는 집에 분개하며 전투태세로 전환했고, 남편은 순식간에 어디선가 장총 같은 토치를 들고 나와서 순간적으로 말벌을 제압했다. 등골이 서늘한 순간이었다.

결과적으로 인간들 중 아무도 말벌에 쏘이지 않았지만 말벌의 입장에서는 집을 잃게 된 것, 말벌 미안하다. 말벌의 집과 공존 중인걸 모르고... 이게 다 허세스러운 자세 때문이다. 소 잃고 외양간 고치기처럼 그 이후로 나는 데크에서 손을 모으고 공손한 자세로 앉고는 했다.

난간 손잡이의 단면 - 난간대 밑으로 벌집이 매달려 있었다.







keyword
이전 03화양평 이층 집 (2)