두 번째 실시설계 미팅
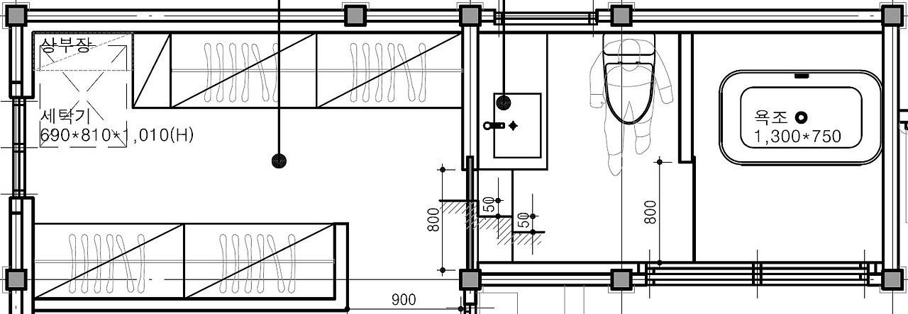
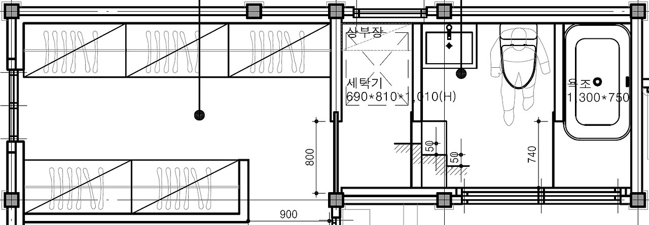
벽돌만 한 크기에서 손안에 쏙 들어오는 크기까지 무럭무럭 진화(?)했던 휴대전화는 언젠가부터 다시 커지기 시작했고, 자동차 역시 점점 더 큰 차가 잘 팔린다고 한다. 그렇다고는 해도 기술이 발전하면 가전제품 정도는 크기가 줄어드는 쪽으로 가는 거 아니었나? 비슷한 성능의 제품이 크기가 커서 대체 좋을게 뭔가 싶은데…. 여하튼 여러 가전제품 중 나날이 덩치를 불려 가고만 있는 녀석이 바로 세탁기다. 게다가 요즘 그럴싸한 제품은 머리 위에 건조기까지 달고 나오다 보니, 작은 가전을 좋아하는 나 같은 사람이 설 곳은 참 좁다.
욕실만 생각하자면 당연히 첫 번째 안이 더 좋았겠지만 옷장이 분명 부족할 거라는 생각이 들어 결국 세탁기는 옷방을 떠나기로 했다. 덕분에 7㎡에 달하던 욕실이 4.5㎡로 줄어들어 샤워공간, 욕조, 변기, 욕실가구 등을 잘 분리해서 꾸미려던 계획은 없던 일로…. 그래도 옷방이 충분히 커졌고, 욕조를 바닥에 매립하기로 하면서 들고 나기도 편해졌으니 꼭 나쁜 일인 것만은 아니려나? 하나를 얻으면 하나를 내줘야 하는 것, 이런 게 설계의 재미겠지.
주택담보대출은 여전히 골칫거리다. 연말이 되면 대략적인 전망이라도 알게 될 거라 생각했더니만, 연초에 해당 은행 지점의 지점장이 바뀌니 다시 이야기하잔다. 다음 주면 구례로 여행을 떠나는데 여행지에서 좋지 않은 연락을 받고 기분 상하는 일 같은 건 부디 없기를.
2021년이 막 시작되던 추운 날, 마음에 드는 집을 찾아 하염없이 북촌을 헤매었다. 그때로부터 무려 열두 번이나 달이 차고 기울어 어느덧 한 해의 마지막 날, 이렇게 실시설계 미팅을 하고 있다는 게 여전히 문득문득 잘 믿기질 않는다.